追分上の原新築戸建
new
(物件番号 2024)

遠くの山々を望む開放感あふれる2階リビング
価格
6800万円
戸建
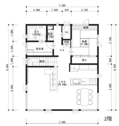
間取
3LDK

土地面積 369m²  (111.62坪)
延べ床面積 119.24m²  (36.07坪)
所在地 軽井沢町大字追分字上の原
交通 しなの鉄道 信濃追分駅 より約3.5km
スーパーツルヤ 約1.5㎞
土地権利 所有権
地目 山林 
都市計画 非線引き区域 用途地域 第一種住居
建ぺい率 60% 容積率 160%
築年月 令和7年10月下旬
建物構造 木造ガルバリウム鋼板葺2階建
道路関係 西側幅員約4.2m公道に約6m接道
引渡 相談 現況 建築中
設備・条件 プロパンガス 公営水道 浄化槽 中部電力
その他の法令制限 軽井沢町自然保護対策要綱による制限有
長野県自然環境保全条例による制限有
宅地造成及び特定盛土等規制法
取引態様 一般
物件番号 2024

引渡日:完成後(10月下旬完成予定)

建物面積:1階56.31㎡、2階62.93㎡

エアコン4台(リビング・各居室)・床下放熱器2台

薪ストーブ(2階リビング)

建築確認番号:6佐建第601-050号

 

※物件掲載内容と現況に相違がある場合は現況を優先と致します。

条件の似た物件

  • 借宿戸建借宿戸建
    6,800万円 3LDK
    信濃追分 軽井沢町大字長倉字野馬垣

    しなの鉄道信濃追分駅
  • 追分新築戸建追分新築戸建
    9,100万円 3LDK
    信濃追分 軽井沢町大字追分

    JR長野新幹線軽井沢駅
  • up
    追分戸建追分戸建
    商談中 4LDK
    信濃追分 軽井沢町大字追分字諏訪大門

    しなの鉄道信濃追分駅
  • 追分築浅戸建追分築浅戸建
    9,200万円 3LDK
    信濃追分 軽井沢町大字追分

    しなの鉄道信濃追分駅

お問い合せ先

株式会社信光不動産
〒389-0111 長野県北佐久郡軽井沢町大字長倉2477-7
TEL:0267-41-1933  FAX:0267-41-1931
宅建免許番号:【長野県知事(3)第5151号】

    下記に入力のうえ、一番下の[送信]ボタンを押してください。

    ◆お名前 (必須)

    ◆フリガナ

    ◆ご住所

    ◆メールアドレス (必須)

    ◆電話番号

    ◆ご請求物件番号

    ◆お探しの物件種類をチェックしてください。 ※複数選択可

    ◆ご購入予定時期をチェックしてください。

    ◆お考えのご予算(土地のみ)  ~ 

    ◆お考えのご予算(建物付き)  ~ 

    ◆ご要望・ご質問(ご希望のエリア・広さなど)

    ◆資料ご送付方法をチェックしてください。 ※複数選択可