

駐車場:有 引渡日:応相談
建築確認:第24NJU-10-00915、長期優良住宅認定通知書/設計性能評価書
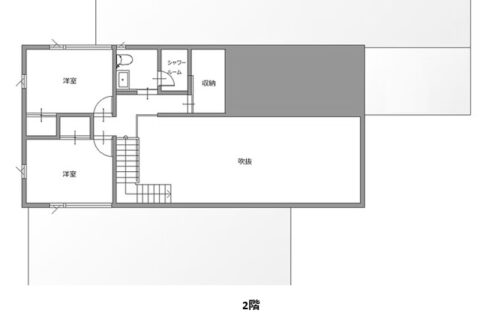
道路後退2m、隣地後退1m、1階148.15㎡(うち、ガレージ19.8㎡)、2階40.20㎡
水道加入金132,000円、下水道負担金364,800円、表示・保存登記費用、
固定資産税の清算金(起算日:4月1日)
※薪ストーブ(NORELAM Forte)/床暖房/エアコン(リビング・寝室×3)/屋根付きカーポート/自然素材使用(無垢のクリ床材)/内壁珪藻土塗り)/土間サロン/1F浴室/2Fシャワールーム/吹き抜け/ウォークインクローゼット/対面キッチン/IHクッキングヒーター/フロントオープン食器洗浄乾燥機/電子オーブンレンジ/パントリー/スマートホーム機器/家具一式/高性能トリプルガラス/長期優良住宅/設計性能評価書取得





















