コンテンツへスキップ
軽井沢の不動産情報なら
軽井沢の不動産 別荘・土地・マンション・一戸建てなら信光不動産
資料請求
営業時間
9:00〜18:00
メニュー
HOME
house
戸建を探す
lands
土地を探す
condominium
マンションを探す
area
エリアで探す
details
こだわり検索
売買物件
賃貸物件
information
お知らせ
contact us
お問い合せ
about us
信光不動産について
会社概要
採用情報
軽井沢を楽しむ
スタッフブログ
軽井沢ランチ日記
自然保護対策要綱
お役立ちリンク
資料請求
お問い合せ
前の画像
次の画像
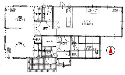
975tate-13
投稿ナビゲーション
975tate-13
内で公開
Fudousan Plugin Ver.5.4.1